轰动湖北的“分尸案”:老汉将年轻女子肢解,将尸体丢在火车站
2025-12-06 13:42:19
「评盘」保利云际:价格诱人,精装惊人,豪宅的面子,“刚需”的里子

河西中备受关注的保利新盘南京云际今天公开了160平米的样板间,同时也传出了比较靠谱的开盘价格:均价4.9万元/㎡,较好楼层5万元/㎡出头。
我绝不否认,这个价格保利可以闭着眼睛卖,而且会被疯抢。但价格也是一把双刃剑,过低了,也许就不是什么好事情了。如果看过云际公布的精装标准,就会明白这句话的含义。今天的评盘,我们正好来说说南京云际这个新盘。

NO.1 明星盘云际公开精装标准,“豪宅变刚需”
南京云际这个楼盘让不少关注河西中的朋友都久等了。因为河西中近期开盘的纯住宅项目,还真就这么一个。
这个楼盘,地段不错,又是保利拉着招商和国贸一起操盘,号称三强联合,面积段又是140㎡起步,怎么看,怎么像是个豪宅社区的配置。不少改善和投资人群早就磨刀霍霍等着又一个产品出炉了。
然而,今天样板间和精装标准交付后,云际的精装修让大家都惊呆了。可以这么说,用豪宅的身子,刚需的精装来形容毫不过分。甚至有些操作连刚需盘都不会有。
某地产圈内人士评价:

某业主群内评价:

到底是什么样的精装修如此惊人?下面来贴一下:

怕大家眼神不好,房先生放大几条:

厨房用的美的灶具和油烟机,装修过的朋友应该心里有数。

马桶用的是惠达的,很多人表示没听说过。

如果说上面两个只是品牌较差了些,那么三大件里的地暖交付方式,全南京算是云际首创了:盘管交付,没有锅炉!
其他楼盘,要么三大件配齐,要么就不含地暖或不含新风,只做两大件。云际这个做法,方便了需要装地暖的人(只需要自己买台锅炉),又美其名曰地暖交付,还节省了成本,可谓一举多得的创新!
如果你以为到此结束了,那么你就错了。

厨房的橱柜,交付是没有的!

洗手间的镜柜,交付时也是没有的!

还有更惊人的。此处交付无浴缸和龙头!
按照正常理解,交付没有浴缸,那样板间就不要做浴缸了嘛,做成一个普通的淋浴房不行吗?可别说这也是为了方便业主拿到房后加装浴缸。
如此不合逻辑,原因很显然只有一个,样板间早就做好了,这是临时简配的!
临时简配的原因就更简单了,价格批不上去。
南京云际之前一直放风均价可能开到5.5万元/㎡,后来降到了5.2万元/㎡。但置业顾问最新的口径已经变成了4.9万元/㎡。
参考同在河西中的世茂天誉4.92万元/㎡的限售均价,这个价格大概率是非常靠谱的了。
不过,与很多楼盘一样,南京云际也通过给底层(1、2层)搭配地下室的方式,增加了销售面积,拉低了整体均价,普通楼层的正常面积段房源,售价应该会在5万元/㎡出头。

▲保利云际这次给二层也搭配了地下室,靠一部单户专属刷卡电梯连接
NO.2 豪宅的铺垫,简配后让人落差感十足
价格上不去,装修降下来,本来也不是让人那么不可理解的。但南京云际公开的装修标准之所以让人感觉这么大跌眼镜,是因为这个项目从地段、文案、到面积段等前期打造标准,给人的感觉就是一个豪宅的格局。

A. 先来看下地段:河西中稀缺宅地
我看一下开发商自己的区位宣传文案(摘抄):

云际项目位于新城科技园内,紧邻河西CBD、龙湖时代上城;北至富春江东街,南至楠溪江东街,东至康苑新村和中鼎雅居小区,西至创意路。板块内的规划非常齐全。
1、 项目属于河西中部板块,是南京规划能级最高的板块。
本案所处的河西CBD是华东地区第二大中央商务区,仅次于上海陆家嘴金融贸易区,聚集阿里巴巴江苏总部、小米科技华东总部等互联网巨头以及汇丰银行、华泰证券等金融中心。
2、 项目交通便利,3线环伺,无缝对接元通、奥体、新街口等重要商圈。
路网通达性高,2分钟到元通商业中心、5分钟到达奥体、半小时内到达南京新街口、江北、南站等重点区域。轨道交通便捷,中胜站、小行站直线约0.7KM;距离地铁2号线元通站直线约2公里。
3、 全能高端配套,打造2公里国际生活圈。
地标汇聚:1.7km至南京最大的城市园林休闲公园—河西中央公园、2.3km至南京青奥会、亚青会—国际博览中心、3km至“双子塔”—南京保利大剧院
完美配套:社区中心自带小体量商业、一街之隔是约36万方的龙湖时代天街、0.5km至徐矿广场、1km至金奥缤纷汇、2km至河西元通华采天地、2.2km至河西中央商场
全龄教育:社区内规划幼儿园用地、1.1km至新城小学南校区、1.2km至建邺实验小学、1.3km至新城初级中学、1km至建邺高级中学
健全医疗:0.8km至明基医院、3km至河西儿童医院
这么漂亮的文案,并不完全是瞎掰的,除了学区距离有诱导性,绝大多数都是准确的。这样的地段,无论怎么看,似乎都应该是妥妥的豪宅范儿。
B. 再来看看户型面积:最小140㎡起步,豪宅的门槛

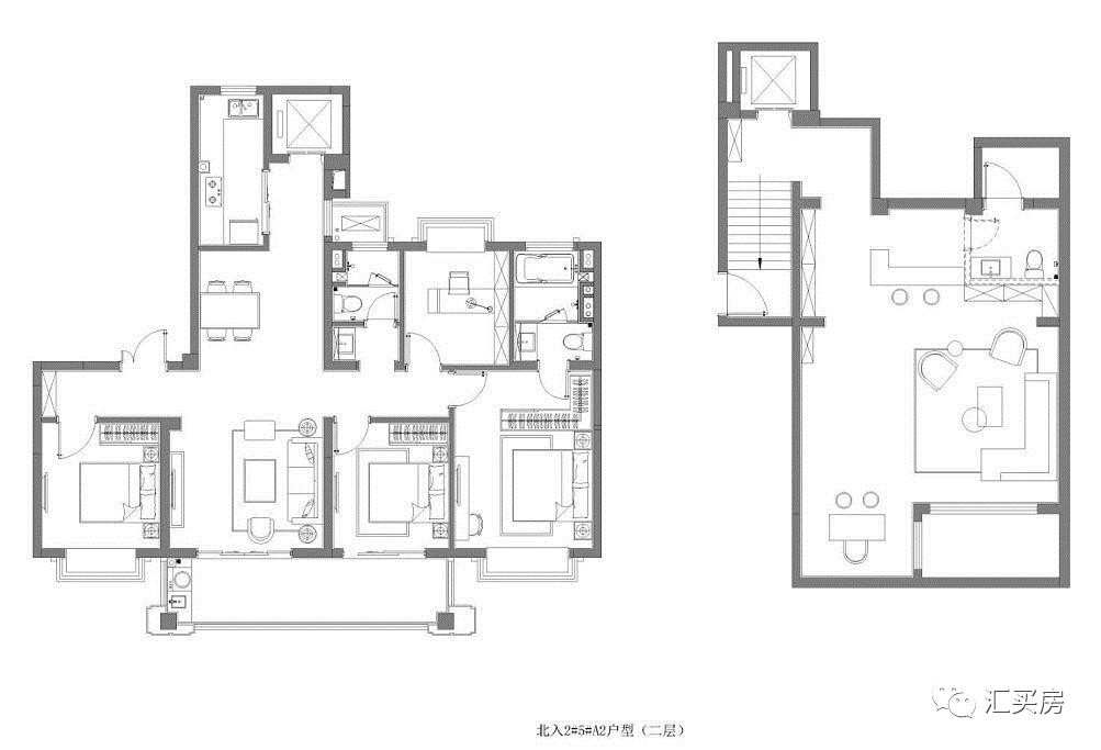
南京云际规划打造5栋17-27F层精装住宅、1栋幼儿园、1栋社区中。住宅共计380户。主力户型为140、160和180平米三种户型,全面积段四房。



140-180㎡的全面积段四房,全面积段四开间朝南,妥妥的大面积豪宅配置,不给刚需任何上车的空间!
C. 最后看看品牌,三家联合是利是弊?
保利自从拿下这幅G22宅地后,几乎所有人都觉得又一个保利天悦豪宅来了。不过合作开发成为主流的当下,保利最终拉来了招商和国贸共同操盘。项目的建设和物业都由招商负责,保利则负责营销。

也就是说,南京云际实际是一个披着保利外壳的保利项目。“云”字系的产品定位,在保利的体系中,显然不如“天”字系。但这也不意味着产品力就差。这里可以比较一下保利在浦口的云禧和云际的售楼处的格局。

▲保利云禧售楼处

▲保利云际售楼处
NO.3 非不能也,实不为也
看到这,也许可以下结论了,南京云际,是一个披着豪宅外衣的伪豪宅。因为限价的因素,豪宅的身子,最终得了一个刚需的命。
可问题是,同样的利润空间,截至目前,南京还没有哪个主打大面积段的产品这样“简单粗暴”的处理过精装修。
同样限价4.9万元/㎡的世茂天誉,也简配了装修,空调什么的也用了国产品牌,但它提供了高端精装包给业主选择,而且它也没有该做镜柜的地方不做镜柜、该给浴缸的地方不给浴缸。
如果你比较一下地价,还会发现葛洲坝中国府的利润空间和南京云际是相差不大的。但是葛洲坝中国府的精装,是实打实的精装,没有简配。
葛洲坝南京中国府,地价:45213元/㎡,售价:6.4万元/㎡,差额:1.88万元/㎡
(保利)南京云际,地价:32356元/㎡,售价:4.9万元/㎡,差额:1.67万元/㎡

▲葛洲坝中国府地下车库精装效果
这就好像我买一部手机,可以配置低一些,但不能缺个摄像头、或者缺个手机背壳,让我自己补,这感觉是不同的。
至于明明利润空间不大,为什么其它项目不这样做,道理也很简单,伤品牌。
保利不在乎品牌吗?看起来似乎南京云际这一次,保利放弃了品牌,选择了节省成本。也可能这是三家房企联合惹的祸,谁也不能完全说了算,大家都是股东,都要对利润负责。特别是与利润产出扣得出名的招商合作。
其实,保利近些年在南京的产品力有所下降也是不争的事实。例如保利香槟国际,明明占了不错的位置和新城黄山路分校不错的学区,但二手房价格就是上不去,目前勉强卖过了5万元/㎡大关,和附近的中北品尚、和府奥园这类非品牌楼盘沦为一个档次。该盘不少业主都反映群组现象严重,物业服务也有问题。

而学区远不如该盘的次新房金隅紫京府,二手房成交价,已经迈过了6万元/㎡大关。更别提河西南的五矿崇文金城,二手房成交价,也摸到了6万元/㎡的门边。
最后还想多说一句,限价对高端豪宅的杀伤力,也许从精装修开始产生的影响,这才刚刚开始。但这次南京云际的处理方式,虽然可以理解,但无疑开了一个不是那么光彩的头。
不过,因为限价,这个盘还是不愁卖的,大家也不要跟钱过不去,有预算就坚定地去摇号。买它,和产品无关,和价格有关。
南京云际160平米样板间下↓




来源:汇买房
2025-12-06 13:42:19
2025-12-06 13:40:03
2025-12-06 13:37:47
2025-12-06 13:35:31
2025-12-06 13:33:15
2025-12-06 13:31:00
2025-12-06 13:28:44
2025-12-06 13:26:28
2025-12-06 13:24:12
2025-12-06 13:21:57
2025-12-06 13:19:41
2025-12-06 03:00:01
2025-12-06 02:57:45
2025-12-06 02:55:30
2025-12-06 02:53:15
2025-12-06 02:50:59
2025-12-05 19:16:32
2025-12-05 19:14:16
2025-12-05 19:12:00
2025-12-05 19:09:44